Outdoor Fireplace Products
GRAND FIREPITS
A grand alternative to smaller, cheap-looking fire pits!
- Massive, highly textured ceramic molded logs.
- Heavy 3/4” steel center stand for stable arrangement.
- Thick 14-gauge pans with high temp powder coating and deep well depth to accept large lava rock.
- Stainless steel high velocity Spoke Burner.
- Continuous spark ignition system is also available.
- Large lava rock between burner and logs.
OUTDOOR GAS FIRE PANS
Linear Fire pans:
- 16 gauge steel pan
- High temp powder coat finish (black)
- 36”, 48”, 60”, 72” and 96” lengths
- 6” wide and 2-1/2” deep, with 1-1/2” lip
- 14 gauge stainless steel burner
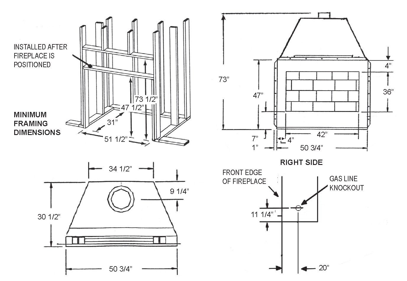
OUTDOOR GAS LOG FIREPLACE
The affordable alternative to outdoor masonry fireplaces.
- Large 42”W x 36”H opening, 25” interior depth
- Includes choice of charcoal refractory panels, herringbone or running bond
- Galvanized steel construction, fully powder coated exterior for outdoor durability
- Refractory floor standard
- Can be used with any vented or vent free gas log
- 10” B-Vent exhaust collar
- Finish material not included
Call or Stop by Today
Fireplace & Grill Factory Outlet in Addison, TX, can be reached at
972-250-2006.








